--   |  设为首页

帮忙装修网

中山

[切换]

中山简单大气的113平北欧风三房装修效果图

来自:中山帮忙装修网 日期:2021-12-06 11:59:55 176336 次 分享到:
导读:
这套房子在小清新中又透露出一些典雅、大气的感觉,这样子的混搭超级赞,你们也来看看吧!中山帮忙装修网公司分享。

今天中山帮忙装修网公司分享的是一套建筑面积113平米的小三房设计,屋主选择了北欧风为主,搭配了一些比较稳重的软装、家具,让这套房子在小清新中又透露出一些典雅、大气的感觉,这样子的混搭超级赞,你们也来看看吧!

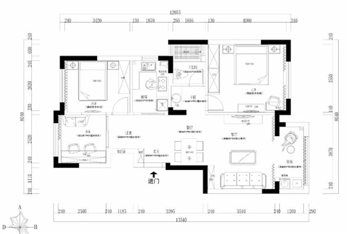
1.webp.jpg

平面布置图

2.webp.jpg

入户的第一个空间就是餐厅,餐桌椅直接靠着走道的墙面摆放,避免走道太过狭窄。玄关正对的餐边柜和隔板非常实用。

3.webp.jpg

餐厅边上的厨房空间,U字型的橱柜很适合方正的厨房,厨房的角落里还放了个小推车,方便放一些蔬菜、水果。

4.webp.jpg

最喜欢的还是这个客厅,以蓝色为主的北欧风空间中,搭配了沉稳的沙发和单椅,给这个小清新的空间带来了一些大气感。

5.webp.jpg

电视背景墙上没有做任何装饰,简单的刷上蓝色乳胶漆就好。客厅的侧边就是卫生间的干区,洗手台刚好被嵌入进了凹槽内。

6.webp.jpg

客厅和阳台直接也没有隔断,这样看起来会更宽敞一些。阳台的一侧做了洗衣机、洗手台和隔板架的设计,满足收纳和实用性。

7.webp.jpg

主卧室是选择了更为温馨的米色作为主色调,米色背景墙搭配浅棕色的窗帘和白色的床品,让人感觉非常的舒服。

8.webp.jpg

次卧是延续了主体的蓝色作为主色调,而且在小清新的蓝白搭配之中,选择了深木色的家具,让卧室更加的沉稳。

9.webp.jpg

书房装着双人位的书桌椅,书桌上方是吊柜书架,整体宽松的空间,为主人提供了个舒适的在家工作学习空间。

10.webp.jpg

卫生间内部的空间并不算宽敞,用挡水条和浴帘来隔离淋浴区,马桶的背后用花砖作为点缀,让卫生间更加有时尚的感觉。


装修预算不够?快来申请装修贷款!月息低至2.5厘。帮忙装修网为解决业主的装修资金难题,特与银行合作推出“装修贷”,一站轻松办理:18824725983 吴先生

长按二维码关注"帮忙装修网",了解更多装修资讯↓↓↓


或拨打免费热线:13822775923

已成功招标53521